829 Cr 231 | Henderson, AR
$439,900
Nearly 10 acres m/l bordering the Corps, sunset views over Norfork Lake, and total privacy near Turkey Knob—this one checks boxes you didn’t think you’d find together. If you’ve been craving quiet mornings, star-filled nights, and room to breathe—this is it. From the porch, you’ll enjoy year-round sunset views, and after dark, the sky truly puts on a show thanks to minimal light pollution. Inside, the home feels warm and inviting, featuring a pellet stove in the living room along with large windows that bring in abundant natural light. The kitchen offers upgraded countertops, ample storage, and a large island with double ovens—perfect for gathering and everyday living. A detached garage with storage loft adds versatility outside. Upgrades include a new roof, fresh interior and exterior paint, waterproof luxury vinyl flooring, and a 50 amp hookup. Located about 22 minutes from town, you’ll enjoy peaceful privacy without sacrificing convenience.
Listing By: Re/max Twin Lakes
Cell: 870-404-3121
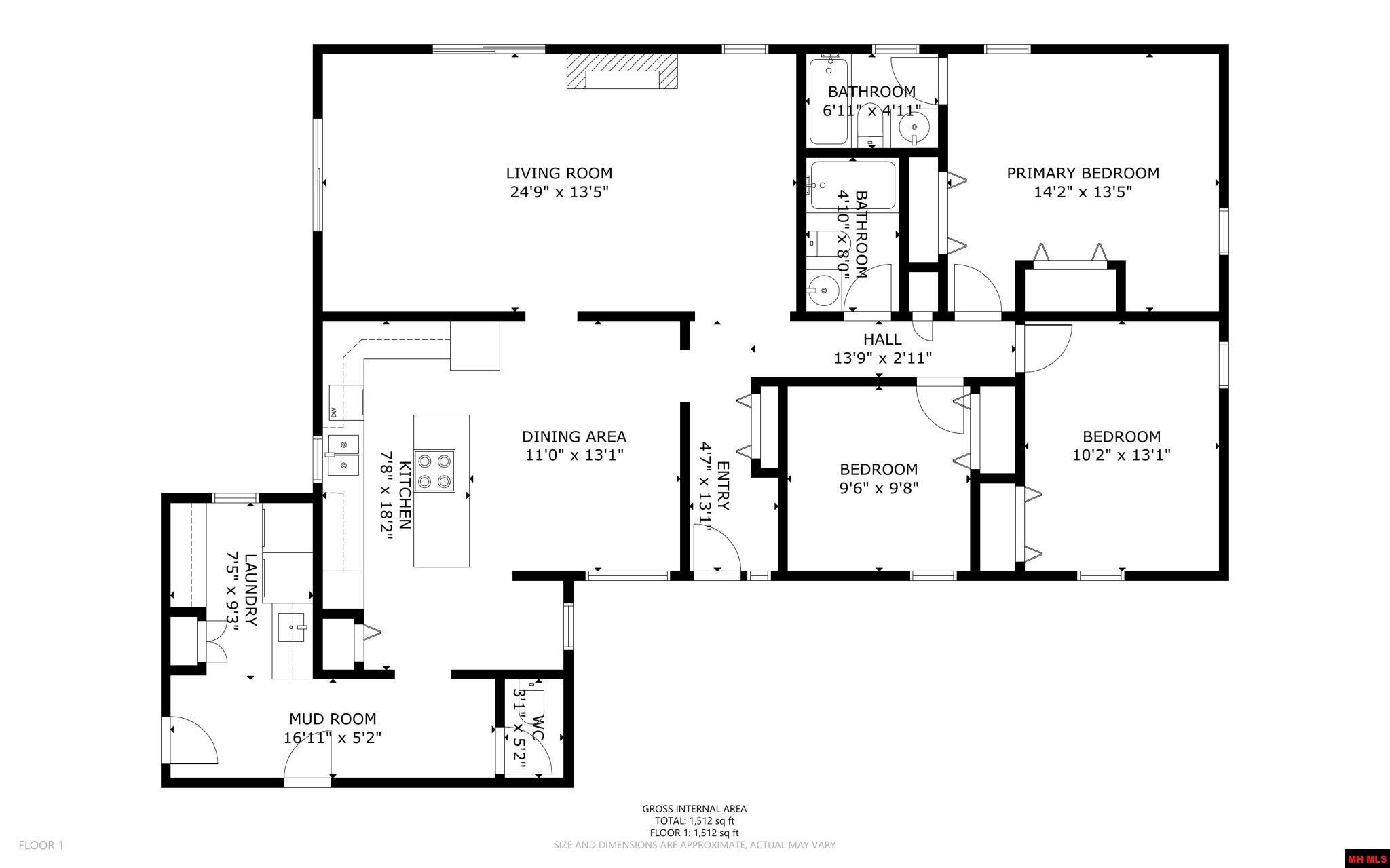
- 1603 Sq. Ft.
- 3 Bedrooms
- 2.5 Bathrooms
- 9.93 Acres
- Print This Page
Features
Amenities
- Dishwasher
- Refrigerator
- Electric Range/Oven
- Wall Oven
- Washer/Dryer Hookups
Heating
- Central
- Electric
- Wood Furnace
Cooling
- Central Air
- Electric
*Information deemed reliable but not guaranteed

